Bovenstaand bestand met toelichting en idee over aanpak de Pier Scheveningen


Bovenstaand: bestaande toestand Kerschoten: woningen hebben veelal uitbouwen aan de achterzijde





PROJECTEN heeft de doelstelling om relevante informatie te tonen, die aansluiten op de benadering van NOVIOTECTO. Gezien de recente ontwikkelingen van NOVIOTECTO zijn de projecten nog in ontwikkelingsfase.
BGO architecten
Samenwerking ligt in de aard van NOVIOTECTO. Niet ieder voor zich, maar juist gebruikmaken van elkaar's kwaliteiten. In dat opzicht is het interessant te verwijzen naar een samenwerking met twee bevriende collega's Ruud van Bochoven en Jan Overeem:
BGO architecten is in 2014 gestart met een idee voor de aanpak voor de toenmalige leegstaande/ongebruikte en verpauperde Pier in Scheveningen. In mei 2015 is dit idee aan de ontwikkelaar Kondor Wessels kenbaar gemaakt...Het heeft geen vervolg gekregen.. Een gemiste kans voor Scheveningen. De basisgedachte was inpassing van seizoensgebonden en daardoor tijdelijke activiteiten (in het kader van de transformatiegedachte). Eén van de voorgestelde tijdelijke activiteiten is kennelijk als permanente activiteit door Kondor Wessels onderkend: de plaatsing van een reuzenrad op één van de eilanden...
Zie ook artikel AD 16 maart 2022:
https://www.bndestem.nl/reizen/wat-te-doen-met-verouderde-scheveningse-pier-maak-er-een-kale-wandelpromenade-van~a97b7562/
Daarnaast is BGO architecten in mei 2015 genomineerd voor de Prijsvraag Vernieuwd Cascodenken voor de Appelwoningen en woonomgeving in de wijk Kerschoten te Apeldoorn:
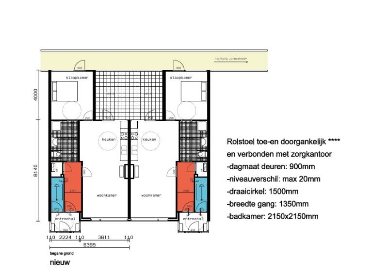
Een transformatie van bestaande woningen tot (zorg)woningen op de begane grond en starters/mantelzorgwoningen op de verdieping. Daarnaast een optie om een woning te transformeren tot zorgkantoorunit, waarin een overdekte achtergalerij ontsluiting met zorgwoningen mogelijk maakt (waarin de bestaande individuele tuinen gemeenschappelijk worden).
De nominatie en het transformatie idee was in 2015 nog zodanig nieuw dat ons geadviseerd werd om een persbericht naar alle grote en middelgrote gemeenten in Nederland toe te zenden. De respons was echter erg mager; alleen de wethouder van gemeente Amsterdam reageerde belangstellend...We hebben het er maar bij gelaten en ons geconcentreerd op onze aktuele projecten en ontwikkelingen; onder het motto "niet nu dan misschien later.."
Wij hebben slechts getracht een bijdrage te leveren voor een oplossing tgv maatschappelijke ontwikkelingen.